← Volver a trabajos

Proyecto arquitectónico para investigación científica

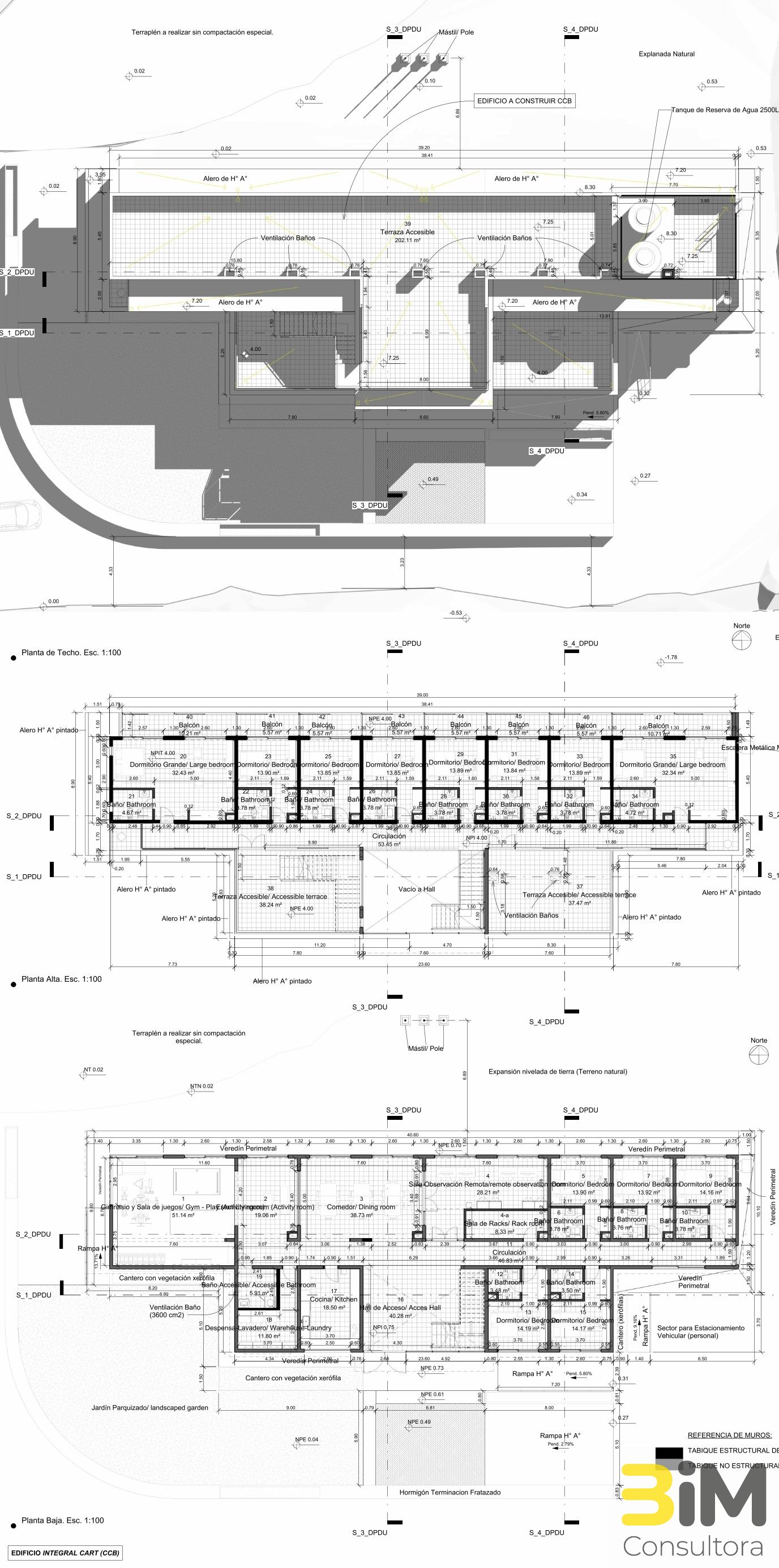
Tuvimos el desafío de diseñar en altura, en un entorno montañoso y con inclemencias climáticas rigurosas.

Además los futuros usuarios e inversores son extranjeros, con lo cual tuvimos que empatizar con sus costumbres, filosofía de vida y cultura en general para poder satisfacer sus necesidades, y poniendo en contexto esta arquitectura en nuestras costumbres, clima y normativa aplicable.

La solicitud fue el diseño integral de 3 edificios relacionados entre sí, pero ubicados en diferentes sectores de la provincia, con diferentes funciones. Además del diseño, desarrollamos todo el Pliego Licitatorio, ya que se trata de una licitación privada. Al trabajarlo bajo Metodología BIM, toda la documentación técnica, escrita y gráfica salió directa e indirectamente de los modelos BIM: Especificaciones Técnicas; Cómputos Métricos y de Materiales; Planilla de Locales; Planos Técnicos Licitatorios; Renders y animaciones.

Resultados: Pliego licitatorio completo y preciso. Diseño integral acorde a las necesidades de los futuros usuarios y adaptado al contexto local.

¿Tenés un proyecto en mente? Contactanos para conocer cómo podemos ayudarte con metodología BIM.

Contactar